Array ( [cat_id] => 43 [cat_name] => 智能配电设备 [unique_id] => zhinengpeidianshebei [parent_id] => 0 [url] => http://www./product/zhinengpeidianshebei ) 高压变频旁路柜-华体会·(hth)体育
电能质量治理 电力能源管理 智能配电设备 机电传动自控 智慧数字电力 品牌战略授权
高压变频旁路柜

产品概述

BPF系列高压变频旁路柜,主要应用于10KV电力系统中,与高压变频柜配套,是一种用于高压变频器故障或检修时,能够保证高压电动机可以正常工作的旁路供电设备,主要由高压隔离开关、高压真空断路器、高压真空接触器、带电显示器、操作单元、连锁机构、外壳以及导体等核心部分组成,高压变频旁路柜的切换方式主要有手动旁路和自动旁路两种。手动旁路方式通过高压隔离开关实现,而自动旁路方式则通过真空接触器或真空断路器来实现,这取决于负载的类型和允许的断电时间。在实际应用中,高压变频旁路柜不仅用于异常保护和检修时的安全隔离,还能通过工频与变频的切换实现变频器的工作状态,确保电机的连续运转,从而提高设备运行的可靠性和稳定性。主要应用于发电厂、水厂、工矿企事业等诸多领域。

性能特点

结构设计:允许根据具体需求灵活配置和扩展,结构紧凑,节省空间,便于安装在有限的空间内集成不同的功能单元;

快速切换:能够在变频器故障时迅速切换到旁路模式,最小化生产中断时间,自动旁路柜可以实现自动切换,保证电机正常运行;

高可靠性:设计用于承受频繁的切换操作,保证在各种工况下稳定运行,适用于各种环境条件,包括不同的温度、湿度和海拔高度。

保护功能:配备过载、短路、过压、欠压等多种保护,提供清晰的隔离点和隔离指示,确保维护人员系统的安全。

智能控制:集成智能控制单元,实现自动切换和故障诊断,提高系统的智能化水平,能够适应不同负载特性和工作条件,保证电动机的稳定运行。

易于维护:考虑维护便利,降低维护成本,该性能特点使其成为现代工业自动化不可或缺的组成部分,特别是在那些对连续生产和设备稳定性要求极高的场合。

高兼容性:设计考虑电磁兼容性,减少对其他设备的干扰,能够与多种品牌和型号的高压变频器配合工作。

操作界面:提供清晰的操作界面,便于操作人员监控和控制,可能具备与中央控制系统或自动化网络通信的能力。

方案原理

设计依据

GB3906-9《13~35kV交流金属封闭开关设备》

GB1984-89 《交流高压断路器》

GB11022-89 《高压开关设备通用技术条件》

GB311.1-97 《高压输变电设备的绝缘配合》

GB763-90  《交流高压电器在长期工作时的发热》; 

GB2706-89 《交流高压电器动、热稳定试验方法》;

GB3309-89 《高压开关设备在常温下的机械试验》;

GB4208-93 《外壳防护等级的分类》

技术参数

配用真空接触器JCZ/CBX/VSC等型

额定电压

7.2/12kV

1min工频耐受电压

30/42kV

额定冲击耐受电压(峰值)

60/75kV

额定频率

50/60Hz

额定电流

400A

分支母线额定电流

400A

额定短路开断电流

4KA

过载能力

120%一分钟,150%立即保护

模拟量输入

0~10V/4~20mA,任意设定

模拟量输出

两路0~10V/4~20mA可选

控制开关量输入输出

可按用户要求扩展

防护等级

外壳为IP4X

应用环境

本产品工作场所海拔不超过2000米,环境温度-25℃~+40℃,相对湿度:日平均不大于95%,月平均不大于90%。

本产品运行场所应具备无有害气体、可燃气体、蒸汽等污染,无导电性或者爆炸性尘埃,运行场所应无经常性的剧烈机械振动。

本产品户内使用运行,如果在特殊情况下户外使用,需加装保护外壳,并参考相关标准保证箱体外壳的防护等级。

本产品避免长期在潮湿环境中放置,如受潮或者凝露,为避免短路,切忌第一时间通电试验,需在专业工程师指导下采取正确方法措施后进行故障排除。

上述为正常使用环境条件,如果实际使用环境不同于上述正常环境条件,由用户与制造厂协商解决。


型号含义

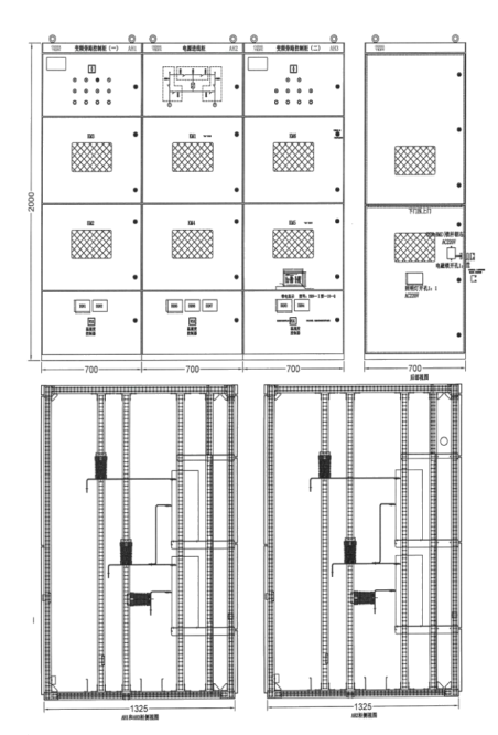
外观结构

标准选型

订货须知

变频柜电力系统图;

变频柜辅助电路电气原理图;

控制方式(手动控制/自动控制)

组合顺序图;

平面布置图;

外壳材质(镀镁铝锌板)

颜色(标准RAL7035)

使用环境(户内)

落地并序安装;

负载性质;

特殊要求注明;

©2024 版权所有 华体会·(hth)体育