Array ( [cat_id] => 43 [cat_name] => 智能配电设备 [unique_id] => zhinengpeidianshebei [parent_id] => 0 [url] => http://www./product/zhinengpeidianshebei ) 综合配电箱-华体会·(hth)体育
电能质量治理 电力能源管理 智能配电设备 机电传动自控 智慧数字电力 品牌战略授权
综合配电箱

产品概述

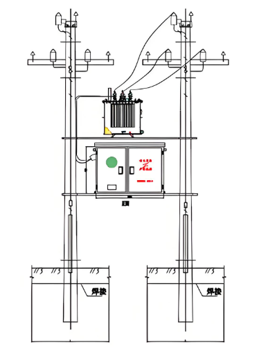
PXTF(JP)系列智能综合配电箱适用于0.4KV系统,城乡电杆上公用配电变压器低压侧安装使用,简称“JP柜”,根据配置功能不同,主要由公变采集终端、开关设备、无功补偿装置、剩余电流保护器、防雷装置、外壳及导体等核心部分组成,集合了配变监测、电能计量、电能分配及无功补偿等功能于一体,起到变压器剩余电流保护、远程控制、低压集抄等多种功能作用,产品稳定高效,广泛应用于农网系统当中。

性能特点 

数据监测:通过公变采集终端进行配变运行参数测量、分析、统计,通过与远程主站系统的数据交换,实现配变在线监测功能;

电能计量:内部安装计量互感器等装置,公变采集终端具备电能计量功能,所记录数据可以用于电量计费和线损考核等;

电能分配:内部安装进线刀熔开关,出线断路器,进线刀熔开关容量与出线断路器容量及路数满足配变容量和供电要求;

补偿无功:内部安装无功补偿元件,根据用户要求可以实现混合、动态、精细补偿,补偿容量满足供电要求,控制器带通讯可以进行远程监控;

保护功能:产品稳定可靠,对变压器具备过载、短路保护,剩余电流保护,对用户设备具备短相保护及防雷保护等保护功能;

远方控制:根据应用需求可实现远方控制功能,公变公变采集终端根据主站系统的命令对每路出线开关实施远方跳闸与合闸控制;

模块设计:可以根据不同的使用需求和功能要求,进行模块化设计和定制。结构设计合理,具有特殊的技术性能;

安装维护:标准化生产制造,确保产品的质量和可靠性。便于维护和检修,提高设备的运行效率和使用寿命。

方案原理

设计依据

IEC439-1《低压成套开关设备和控制设备》

GB7251.1-2005《低压成套开关设备和控制设备》
GB/T15576-2008《低压成套无功功率补偿装置》

技术参数

额定工作电压(Ue)

400V

成套设备的额定电流(Im)

100A、160A、200A、250A、315A、400A、630A、800A

额定频率(fn)

50Hz

额定绝缘电压(Ui)

660V

额定冲击耐受电压Uimp(kv)

主回路:8kV,辅助回路:4kV

补偿容量

5-300kvar. 按变压器10%~40%进行补偿

补偿方式

分相补偿/三相补偿/组合补偿

动态响应时间

<20ms

绝缘电阻

≥4MΩ

介电强度

主回路相对地:2.5kV,1分钟;辅助回路对地:2.5kV,1分钟

断路器额定极限短路分断能力

≥35KA

电气间隙

≥10mm

爬电距离

≥14mm

安装方式

单杆支架安装、变压器台架(槽钢)上安装

防护等级

≥IP44; (特殊要求可订制)

污染等级

III级

接地方式

中性点直接接地(TT系统)

应用环境

本产品工作场所海拔不超过2000米,环境温度-25℃~+40℃,相对湿度:日平均不大于95%,月平均不大于90%。

本产品运行场所应具备无有害气体、可燃气体、蒸汽等污染,无导电性或者爆炸性尘埃,运行场所应无经常性的剧烈机械振动。

本产品避免长期在潮湿环境中放置,如受潮或者凝露,为避免短路,切忌第一时间通电试验,需在专业工程师指导下采取正确方法措施后进行故障排除。

上述为正常使用环境条件,如果实际使用环境不同于上述正常环境条件,由用户与制造厂协商解决。


型号含义

外观结构

选型参考

 

补偿容量

W

H

D

20kvar

500

950

300

30kvar

500

950

300

50kvar

500

950

300

60kvar

500

950

300

80kvar

900

1050

550

100kvar

900

1050

550

125kvar

900

1050

550

160kvar

900

1050

550

200kvar

750

1350

550

250kvar

750

1350

550

315kvar

750

1350

550

订货须知
系统原理图;
系统电压等级;
额定功率;
计量单元;
外壳材质(不锈钢/SMC)
颜色
使用环境
柱上安装;
进出线方式;
负载性质;
特殊要求注明;
©2024 版权所有 华体会·(hth)体育